Ahora en Cap Cana, la vida y el trabajo se alinean...
Un distrito de oficinas y servicios esenciales diseñado para el día a día de quienes viven y trabajan en Cap Cana.
Ubicación estrategica
Lake District
Donde todo converge.
Lake District es una de las zonas con mayor proyección dentro de Cap Cana, concebida como un polo de servicios, vida diaria y actividad constante.
Meridiano 18 se ubica estratégicamente para articular la actividad corporativa y la oferta de servicios del área —oficinas, cafés, restaurantes, banco, minimarket y gimnasio—, consolidándose como un punto clave para la operación diaria y el uso real de Lake District.
Proyecto
Todo lo que necesitas, en un solo lugar.
Meridiano 18 es un WorkLife District ubicado el Lake District, Cap Cana, que integra oficinas y servicios esenciales en un solo entorno.
El proyecto responde a una nueva forma de habitar el destino: personas que ya no solo visitan Cap Cana, sino que eligen vivir, trabajar y resolver su día a día aquí.
Oficinas
Banco
Food Court
RoofTop Sports Bar
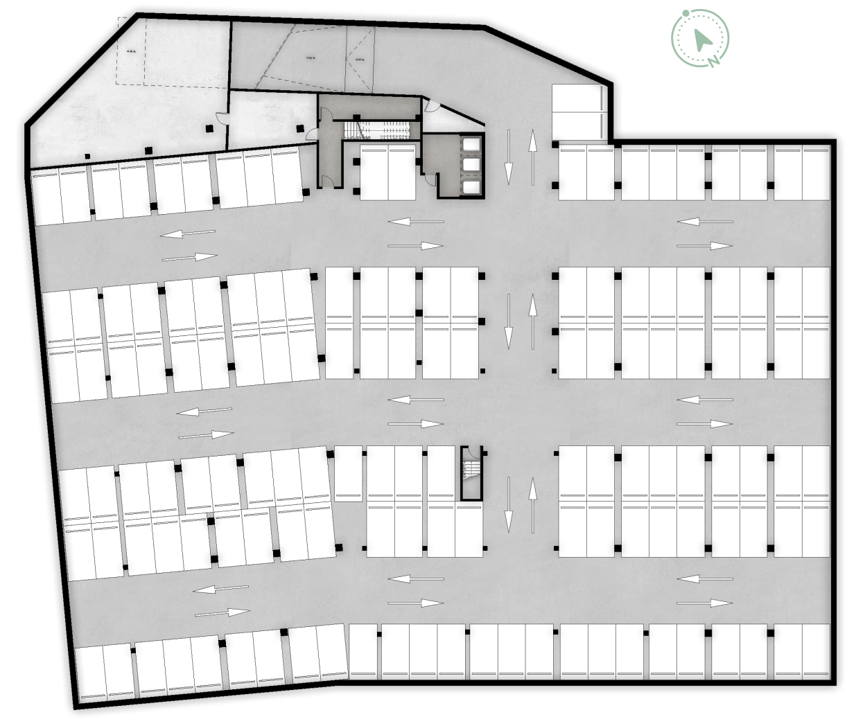
Parqueos 145 (128+17)
MiniMarket
Gimnasio
Escaleras
Ascensor
Gimnasio
Oficinas
MiniMarket
Banco
FoodHall
Rooftop
Locales comerciales
Locales diseñados para activar el día a día en Cap Cana, con un programa que genera tráfico diario real, no estacional.
+ de 2.200 m² disponibles
12 locales en piso 1, 2 y 6 (Rooftop)
81 oficinas del piso 2 al 5
+ de 4.700 m² disponibles
Múltiples unidades con configuraciones flexibles
Plantas
Banco
1 local
Food Court
8 locales
Gimnasio
1 local Piso 1 y 2
MiniMarket
1 local
3 Ascensores
Oficinas
Gimnasio
1 Local Piso 1 y 2
Oficinas
Terrazas
Oficinas
Terrazas
Oficinas
Terrazas
RoofTop
Sports Bar
Parqueos 145 (128+17)
Equipo
Experiencia que se traduce en confianza
Grupo Joseda es un destacado holding empresarial integrado por cinco compañias dominicanas, con mas de 17 años de solida trayectoria en el mercado nacional e internacional.
Se ha consolidado como un referente en los sectores de desarrollo inmobiliario, seguridad electrónica, domótica, terminaciones e importación.
Cuenta con presencia en la República Dominicana, con sedes en Santo Domingo, Santiago y punta Cana, y operaciones en Panamá.
Asimismo, Grupo Joseda es representante oficial de OPPEIN Corp. en la República Dominicana, líder mundial en mobiliario de cocinas, baños, puertas y closets, reforzando su posicionamiento y liderazgo en el sector.
Nuestro equipo multidisciplinar reúne perfiles especializados que combinan experiencia y fiabilidad con nuevas perspectivas e ideas innovadoras.
Contamos con expertos en arquitectura, MEP, estructuras, certificaciones y sostenibilidad, paisajismo, interiorismo, construcción y soluciones computacionales desde nuestro departamento de I+D.
Morph diseña y materializa soluciones singulares y proyectos innovadores en arquitectura, diseño e ingenieria.
Impulsados por la innovación, la singularidad y la fiabilidad, nuestro próposito es revolucionar la forma de vivir de las personas.
Contacto
Carla Daniela Viera González
Gerente de marca y ventas Meridiano 18
+1 (829) 420-7865
Boulevard turístico del Este, Edif. Nautilus,
Piso 1, 23000
Punta Cana, República Dominicana
Escribenos para recibir el dossier completo




